De Amsterdamse Ontwikkelingsmaatschappij (EAOM) heeft het eigendom verworven van een bedrijfsruimte en zal dit ontwikkelingen tot een schitterende bedrijfsruimte aan de Reinaert de Vosstraat.
Recentelijk gerenoveerde bedrijfsruimte gelegen aan de Reinaert de Vosstraat, nabij de Admiraal de Ruijterweg, de Bos en Lommerweg en het Erasmuspark.
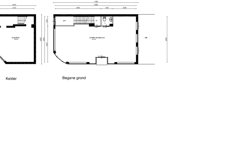
De totale oppervlakte bedraagt circa 80 m² en de bedrijfsruimte wordt gebruiksklaar opgeleverd.
Deze bedrijfsruimte bestaat uit twee verdiepingen. In het souterrain vindt u een badkamer en een toilet met fonteintje.
Voor meer informatie over dit object kunt u contact opnemen met: Tom Meertens | info@eaom.nl























